FR Français |
EN English

The top floor privilege - 2 020 000 €

Overlooking Monaco from the heights of Beausoleil, this exceptional penthouse crowns a new and elegant residence, offering a panoramic view of the Mediterranean and a unique way of life between sky and sea.

5
Rooms
4
Bedrooms
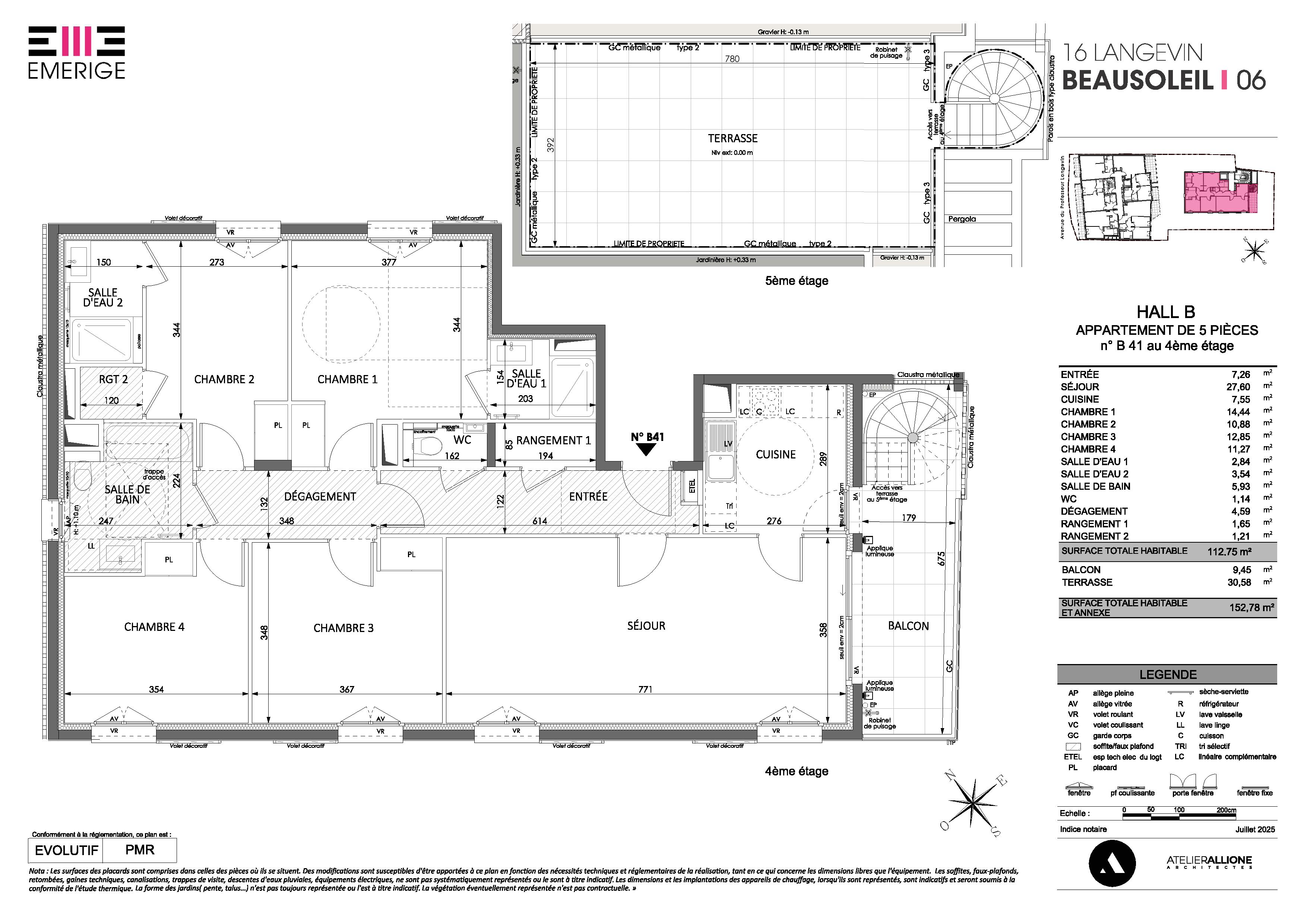
112.75 m2
Living Area
40 m2
Outdoor Space

Cimes azuréennes: exceptional penthouse with panoramic views of Monaco

Overlooking the sea from the rooftop of a new, sleekly designed residence, this exceptional penthouse embodies the Côte d'Azur lifestyle in all its splendor. Just minutes from Monaco and the center of Beausoleil, it enjoys a prime location between the sea and the hills, in the heart of a peaceful and lush environment.

 

Designed in perfect harmony with its natural setting, the residence stands out for its contemporary architecture with clean lines, luminous colors, and high-quality materials that evoke the softness and elegance of the Côte d'Azur.

 

Bathed in light thanks to large bay windows, the penthouse offers generous volumes and panoramic views of the sea, the port of Monaco, and the surrounding landscape. The spacious terraces extend the living spaces and invite you to relax in a soothing and refined atmosphere.

 

High-end finishes, glass railings, and elegant privacy screens highlight the modernity and finesse of the design. A true haven of peace overlooking the Principality, this rare property combines absolute comfort, prestige, and serenity in one of the most sought-after locations on the Riviera.

Discover the floor plans

Visualize the layout and volumes with clarity. Architecture designed for comfort, elegance and fluid spaces.

Contact

A sales representative will respond to you as soon as possible

Discover our other penthouses

Majestic 5-bedroom duplex: Horizon in Cimiez

Majestic 5-bedroom duplex: Horizon in Cimiez

1 690 000 €

Location 06000 Nice
Learn more
Elegant 4-room apartment with high-end finishes

Elegant 4-room apartment with high-end finishes

595 000 €

Location 06000 Nice
Learn more